north castle residence
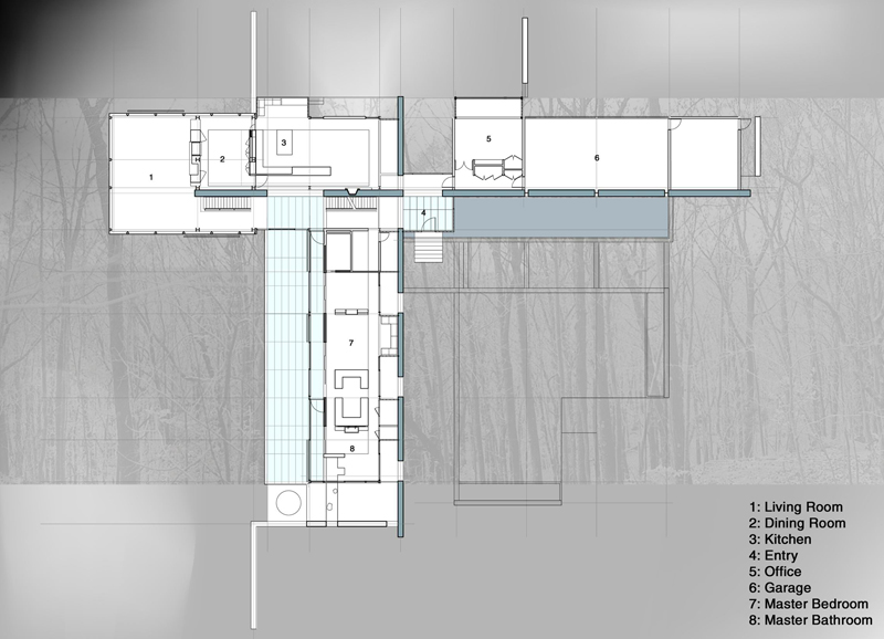
The house is sited at the core of the property along the edge of a natural rocky hillcrest, where it can neither see nor be seen by its neighbors. The design begins with two stone walls inserted perpendicular to one another on the site. The principle volumes of the house are arranged along these walls, the bedroom wing running along the north south one, while a double height living block cantilevers off the end of the other and over the rocky crest. The living room is removed from the rest of the house. This double height volume cantilevers its inhabitants in a 270-degree panorama. The room is suspended from four tapering girders and enclosed by a glass curtain wall. Cantilevering the living room above ground level allows for privacy in the glass enclosed indoor pool at the ground level. Translucent glass bricks and glass planks have been used as a roof above the indoor lap pool that also doubles as a terrace to the main level, allowing for a feeling of openness and light.






















